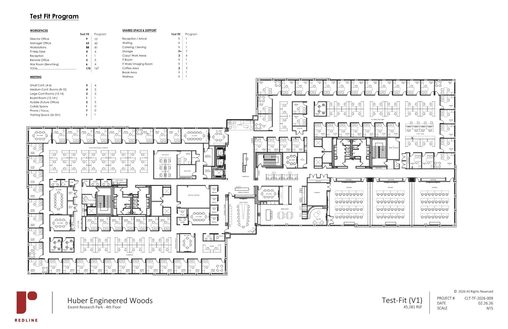
Program Summary
Below we’ve captured a summary of the programmatic areas provided within your test fit.
Private Officesx
Executive Officesx
Huddle Roomsx
Workstationsx
Break Roomxxxx SF
Storage Roomsx (xxx SF)
Conference Roomsx
Below we’ve captured a summary of the programmatic areas provided within your test fit.
Private Officesx
Executive Officesx
Huddle Roomsx
Workstationsx
Break Roomxxxx SF
Storage Roomsx (xxx SF)
Conference Roomsx